Reserve Collection | The Edina | Generation Homes Northwest

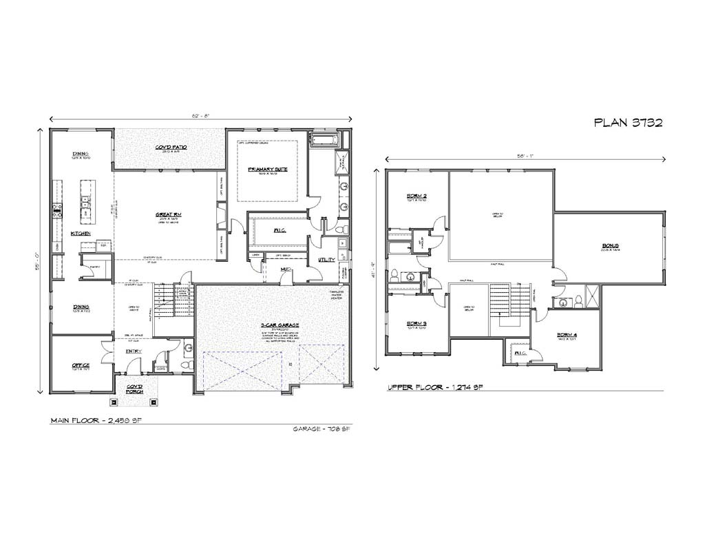
3732 SF | Edina

Call for pricing

The Edina home features 4 bedrooms, 3.5 bathrooms, premium features including, quartz countertops, fully wrapped and painted windows, covered patio and a fully landscaped and fenced yard. 

Generation Homes Northwest logo

For more information on this home or to schedule a showing, contact our team today!

Portrait Photograph of Rachel Olin, Sales Associate

Rachel Olin
Washington Sales Associate

CONTACT WASHINGTON