


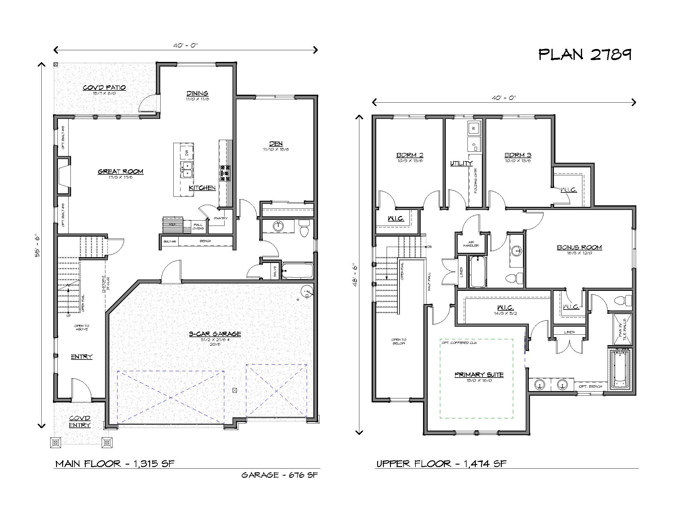
The Kingston features 4 bedrooms, 3 full bathrooms, bonus room and premium features including, quartz countertops, fully wrapped and painted windows, covered patio and a fully landscaped and fenced yard.
Charity Sigler
Idaho Sales Associate
CONTACT IDAHO