

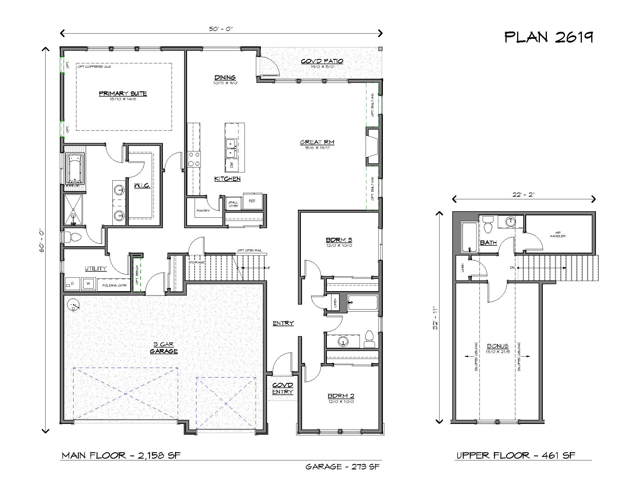
The Lakeville features 3 bedrooms, 3 full bathrooms, and premium features including, quartz countertops, fully wrapped and painted windows, covered patio and a fully landscaped and fenced yard.
Charity Sigler
Idaho Sales Associate
Complete the form below and a member of our team will contact you shortly to confirm a good time for you.